Appartamento in vendita a Mathi

In vendita
Mathi - Via Santa Lucia, 6
54.000 €
Appartamento
Categoria
110
m2
3
Locali
2
Camere
1
Bagni
1
Box
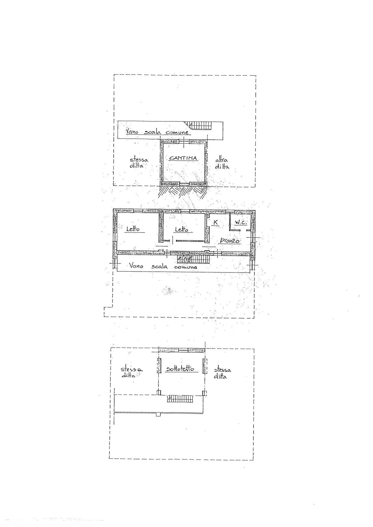
Descrizione
In pieno centro paese, a due passi da tutti i servizi principali, proponiamo in vendita alloggio al piano terra con locali accessori quali cantina al piano interrato e autorimessa anch'essa al piano terreno. L'appartamento si presenta in discrete condizioni, in parte da sistemare ed è così costituito: ingresso su disimpegno, cucinotto, bagno e due camere di generose dimensioni. Riscaldamento autonomo e spese condominiali contenute. Libero subito.








Caratteristiche principali
Codice:
V000596
Città:
Mathi
Categoria:
Appartamento
Locali:
3
Camere:
2
Bagni:
1
Mq:
110
Box:
1
Piano:
Terra
Classe energetica:
G
Stato Immobile:
Da Ristrutturare
Lati Liberi:
3
Arredi:
Non Arredato
Tipo Soggiorno:
Soggiorno
Tipo Cucina:
Angolo Cottura
Riscaldamento:
Autonomo
Tipo Riscaldam.:
Caldaia
Tipo Impianto:
Radiatori
Fonte Energetica:
Metano
Acqua Calda:
Autonoma
Infissi:
Legno
Accessori
Cancello Elettrico
Mappa
Planimetrie
Cookie preference