Villa in vendita a Ciriè

In vendita
Ciriè - Via San Maurizio, 107
330.000 €
Villa
Categoria
190
m2
5
Locali
2
Camere
3
Bagni
1
Box
Descrizione
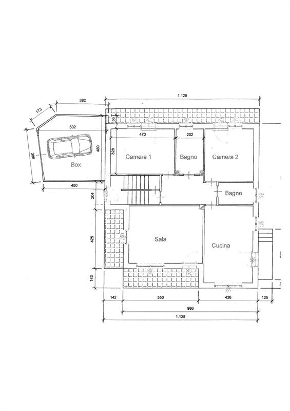
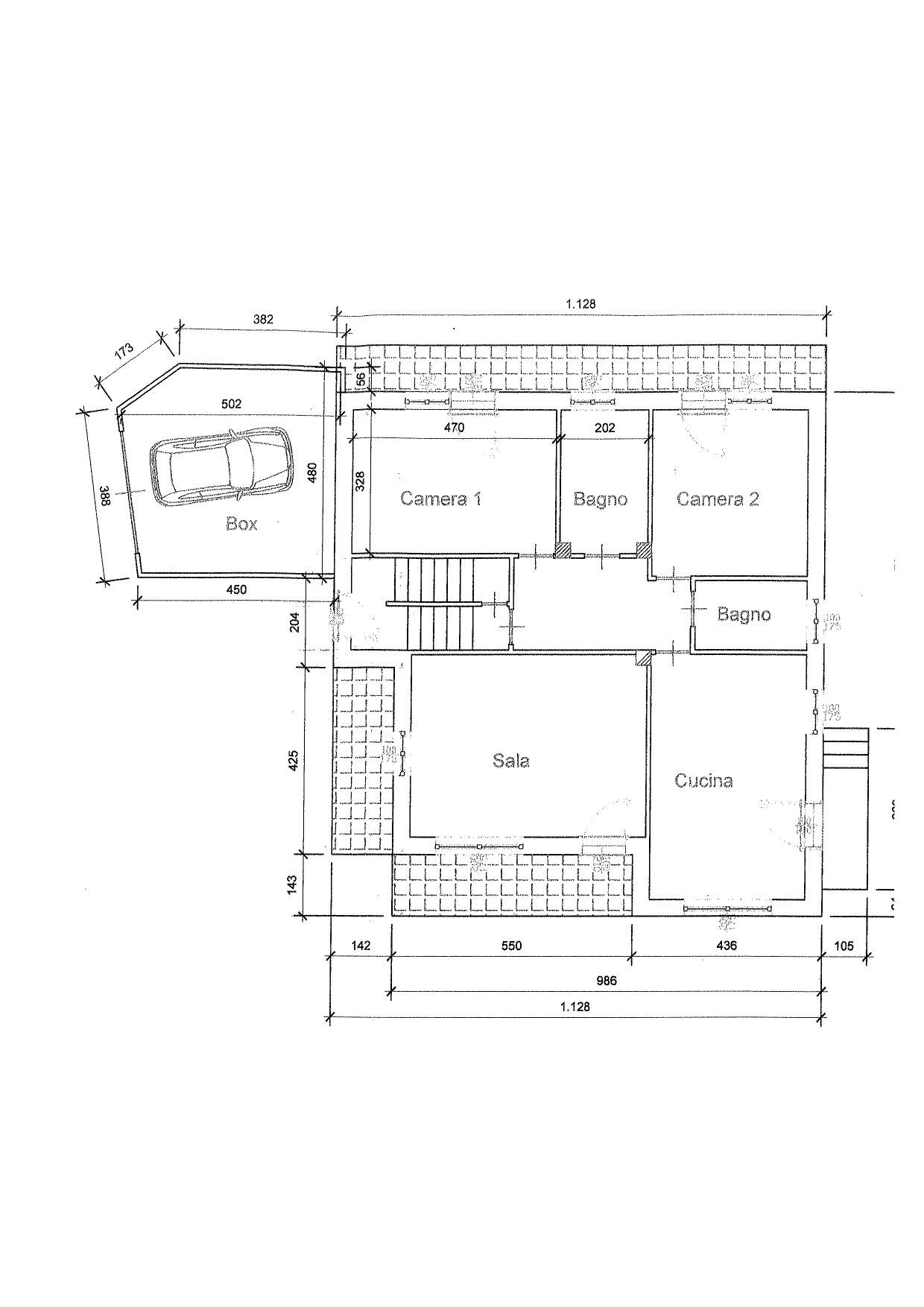
Graziosa villa in ottime condizioni, ideale per famiglie in cerca di comfort e privacy. La zona abitabile si estende su un unico piano, composta da ingresso, ampio soggiorno con camino ventilato, cucina abitabile, doppi servizi, due camere da letto e due balconi che danno sul giardino privato, perfetto per momenti di relax all'aperto. Il piano sottotetto, accessibile tramite comoda scala interna, è ben rifinito, provvisto di un piccolo servizio igienico e perfetto come saletta hobbies o cameretta ospiti.
La villa dispone inoltre di un piano seminterrato ad uso accessorio e di uno spazioso garage, accessibile dalla strada adiacente alla proprietà. Il riscaldamento è autonomo a metano. La proprietà, libera e subito disponibile, può essere ceduta con l'attuale arredamento ad eccezione di alcuni elementi ed effetti personali. Buona la posizione dell'immobile, comoda ai principali servizi del Comune di Ciriè e con facile accesso alla superstrada per Torino.
Caratteristiche principali
Codice:
V000623
Città:
Ciriè
Categoria:
Villa
Locali:
5
Camere:
2
Bagni:
3
Mq:
190
Box:
1
Mq Box:
24
Mq Giardino:
500
Balconi:
2
Classe energetica:
E
Stato Immobile:
Ottimo
Posizione:
Centro
Panorama:
Vista Aperta
Lati Liberi:
4
Giardino:
Privato
Arredi:
Arredato
Tipo Soggiorno:
Soggiorno
Tipo Cucina:
Abitabile
Riscaldamento:
Autonomo
Tipo Riscaldam.:
Caldaia a Condensazione
Tipo Impianto:
Radiatori
Fonte Energetica:
Metano
Acqua Calda:
Autonoma
Infissi:
Legno Doppio Vetro
Serramenti:
Ottimo
Persiana:
Tapparella PVC
Accessori
Camino
Doppi Vetri
Tavolini Esterni
Zanzariere
Mappa
Planimetrie
Cookie preference